生活
LIFE
仕事
WORK
空き家
HOUSE
イベント
EVENT
団体概要
ABOUT
募集中
賃貸
土佐町
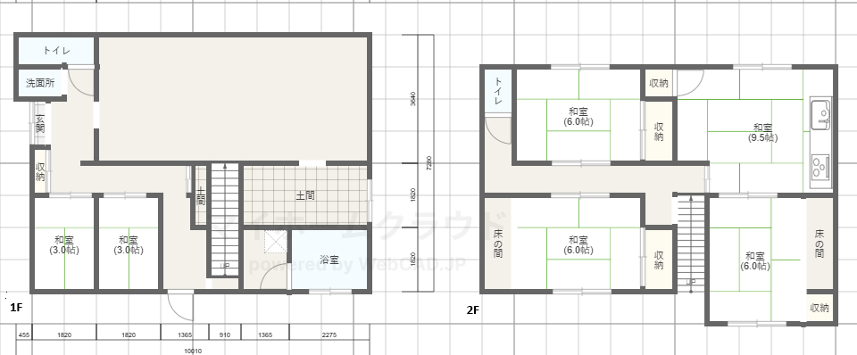
(TS‐210)土佐町中心部にある1階元飲食店、2階住居のお家
一階の店舗を使用する場合は、修繕が必要です。
二階の住居スペースはすぐ住める状況です。
徒歩圏内に郵便局、飲み屋さん、スーパーがあり、たいへん利便性が良い立地にあるお家です。
う
物件詳細ダウンロード
物件情報
賃料
27,000円
構造
木造2階建
間取り
2階:3DK、1階:店舗スペース、個室2部屋、倉庫
駐車場
あり
ガス、トイレ、水道など
ガス:プロパン
トイレ:簡易水洗
水道:上水道
お問い合わせはこちら
その他の空き家
【土佐町】中心部にある1階元飲食店、2階住居のお家(TS-210)
空き家
【土佐町】役場近くのアパート1階部分(TS-209)
空き家
【土佐町】昔ながらの長屋風平屋(TS-208)
未分類
【土佐町】小高い場所にあり、リフォームしたばかりの綺麗なお家②(TS-190)
未分類